Rejoindre l'équipe de location
Appartements
360 À 368 Rue Lafayette
368 Rue Lafayette 360 a, Québec, QC G1N 3J1, Canada
(Quartier: Saint-Sauveur)
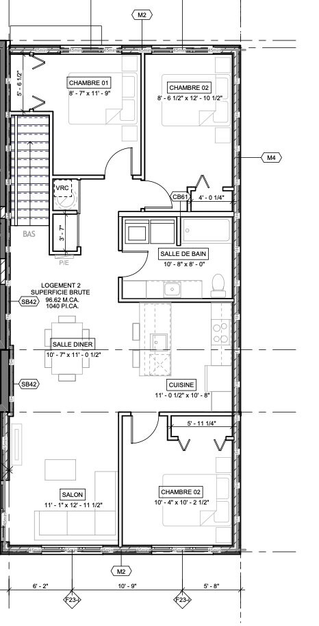
Plan des immeubles et détails des appartements
Plan de l'immeuble
Plan des étages

Plan à venir
Appartements disponibles
Aucun appartement disponible présentement
Cette appartement n'est plus disponible
Rejoindre l'équipe de location
Bâtiment
- Quartier Saint-Sauveur
- Année de construction 1940
- Nombre d'appartements 13